Assetz Codename Sublime Floor Plans

Detailed layouts for all three 3 BHK configurations, each engineered for 73.5% carpet area efficiency and designed around generous balconies and practical room proportions.

Understanding the Floor Plan Philosophy

The floor plans at Assetz Codename Sublime reflect a design philosophy that prioritises usable living space over headline super built-up area numbers. With a 73.5% carpet area efficiency, these layouts deliver more actual living space per square foot of SBA than many comparable projects in the Bangalore market, where carpet efficiencies of 65% to 70% are commonplace.

This efficiency metric matters because it directly determines how spacious your home feels and functions on a daily basis. A 1,668 sq ft SBA unit at 73.5% efficiency gives you approximately 1,226 sq ft of carpet area, while the same SBA at 68% efficiency would yield only about 1,134 sq ft. That difference of roughly 92 sq ft is the equivalent of a small bedroom or a generous study area. Across all three configurations, this efficiency advantage translates into rooms that feel proportionate, corridors that do not feel cramped, and kitchens that can accommodate proper workstation layouts.

Every configuration at Codename Sublime is exclusively 3 BHK, which means the design team was able to focus all their optimisation effort on a single apartment typology rather than spreading it across 1 BHK, 2 BHK, and 3 BHK variants. The result is three thoughtfully differentiated layouts that share common design standards — luxury balconies, well-proportioned bedrooms, functional kitchens — while offering meaningful variation in total area and spatial emphasis.

All apartments benefit from the project's structural provision of 5 lifts per core, ensuring that vertical circulation is efficient even in the tallest tower (Tower A at 2B+G+36 floors). The 30 double-height grand entrance lobbies across the development set a quality standard from the moment you step through the building doors.

Three 3 BHK Configurations

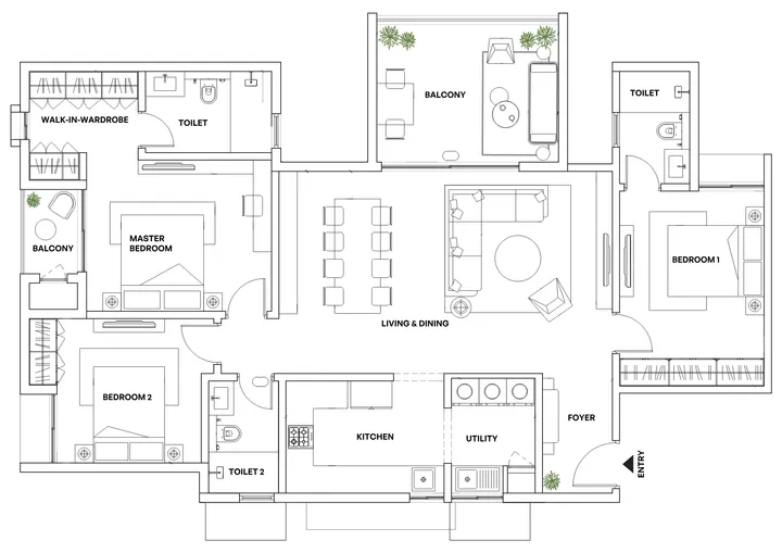
3 BHK Type 1 floor plan at Assetz Codename Sublime showing room layout and dimensions
Most Accessible

3 BHK Type 1 — 1,668 Sq Ft SBA

The Type 1 layout is the entry point into the Assetz Codename Sublime community, offering a compact yet well-proportioned 3 BHK configuration at 1,668 sq ft of super built-up area. With the project's signature 73.5% carpet area efficiency, this translates to approximately 1,226 sq ft of usable living space.

The layout prioritises a functional flow between the living-dining area, kitchen, and bedrooms. The master bedroom is sized to accommodate a king-size bed with adequate clearance for wardrobes and a dressing area. The two secondary bedrooms are proportioned for comfortable use as children's rooms, guest rooms, or home offices. The balcony provides outdoor access that extends the living area's visual and functional footprint.

Price Range Rs 1.84 – 2.02 Cr
Carpet Area (approx.) ~1,226 sq ft
3 BHK Type 2 floor plan at Assetz Codename Sublime, 1831 sq ft layout
Mid-Range

3 BHK Type 2 — 1,831 Sq Ft SBA

The Type 2 configuration steps up to 1,831 sq ft of super built-up area, delivering approximately 1,346 sq ft of carpet area. The additional 163 sq ft of SBA compared to Type 1 is distributed thoughtfully across the layout, providing noticeably more room in the bedrooms, a larger living-dining zone, and more generous balcony dimensions.

This mid-range layout represents the balance point of the project, offering significantly more space than the Type 1 without the premium associated with the largest configuration. The kitchen is designed to accommodate a utility area or additional counter space, and the master bedroom can comfortably include a walk-in wardrobe arrangement. The living-dining area is proportioned for a full dining table setup alongside a comfortable lounge arrangement.

Price Range Rs 2.02 – 2.20 Cr
Carpet Area (approx.) ~1,346 sq ft
3 BHK Type 3 floor plan at Assetz Codename Sublime, 1849 sq ft layout with large balcony
Largest Configuration

3 BHK Type 3 — 1,849 Sq Ft SBA

The Type 3 is the flagship layout at 1,849 sq ft SBA, yielding approximately 1,359 sq ft of carpet area. This configuration features the most expansive balcony dimensions in the project — up to 13 feet by 9 feet 10 inches — which is large enough to function as a genuine outdoor room rather than a narrow ledge.

The additional area compared to Types 1 and 2 allows for the most generous room proportions across all three bedrooms, a living-dining area that can accommodate large furniture arrangements, and a kitchen layout with ample counter space and storage. The master suite in this configuration is the most spacious in the project, with room for a king-size bed, full wardrobe setup, and a dressing area without compromise.

Price Range Rs 2.04 – 2.22 Cr
Carpet Area (approx.) ~1,359 sq ft

Tower Floor Plan Overview

Assetz Codename Sublime comprises three towers with differing heights that create an architecturally varied skyline. Tower A rises to 2B+G+36 floors, making it the tallest structure in the development, while Towers B and C reach 2B+G+32 floors. All three towers share the same structural standards, lift provision (5 per core), and double-height grand entrance lobby design.

The typical floor plan arrangement within each tower has been designed to maximise natural light and cross-ventilation for all units, regardless of their position. Corner units benefit from two-sided exposure, while central units are oriented to ensure adequate daylight in all habitable rooms.

The plan board layout shows how the three unit types are distributed across a typical floor, illustrating the relationship between units, the common corridor, lift lobbies, and service areas. This bird's-eye view helps buyers understand not just their individual apartment layout but also the context of their unit within the tower.

For detailed pricing across all configurations, visit the pricing page. To understand how the towers relate to the broader site, see the master plan.

Plan board showing typical floor layout and unit distribution at Assetz Codename Sublime

Design Features Across All Floor Plans

While the three configurations differ in total area and room proportions, they share a common set of design features that define the Assetz Codename Sublime living experience.

Luxury Balconies

Every apartment includes balcony access, with the largest dimensions reaching up to 13 feet by 9 feet 10 inches in the Type 3 configuration. These are not token projections. They are dimensioned to function as genuine outdoor living areas — large enough for a dining table, lounge chairs, or a container garden. The balconies extend the living area's visual footprint and provide natural ventilation and daylight to adjacent rooms.

73.5% Carpet Area Efficiency

This efficiency ratio is a critical metric for apartment buyers. It determines the proportion of the super built-up area that you actually occupy as private living space. At 73.5%, Assetz Codename Sublime delivers significantly more usable area than the 65-70% range typical of many Bangalore apartment projects. This means larger rooms, more practical kitchen dimensions, and corridors that do not feel squeezed. When comparing projects, always ask about carpet area efficiency — it is one of the most reliable indicators of actual living quality per rupee spent.

Double-Height Grand Entrance Lobbies

All 30 entrance lobbies across the development feature double-height proportions that create a sense of arrival and openness from the moment you enter the building. This is an architectural feature typically reserved for premium commercial or hospitality projects, and its inclusion in a residential development signals Assetz's commitment to elevating the common area experience.

Five Lifts per Core

With 800 apartments across three towers, lift capacity is a genuine operational concern. The provision of 5 lifts per core ensures that waiting times remain reasonable even during peak morning and evening hours. This is particularly important in Tower A, which at 2B+G+36 floors is one of the taller residential towers in the East Bangalore corridor.

Carbon-Healing Home Integration

The Carbon-Healing Home design philosophy is embedded at the floor plan level through the selection of low-embodied-carbon materials, natural ventilation optimisation, and daylight maximisation. This is not a building-level certification applied after the fact. It is a design-led approach that influences room orientation, window sizing, and material choices within each apartment. Learn more about the overall project design on the overview page.

Floor Plan Comparison

Feature Type 1 Type 2 Type 3
SBA 1,668 sq ft 1,831 sq ft 1,849 sq ft
Approx. Carpet Area ~1,226 sq ft ~1,346 sq ft ~1,359 sq ft
Carpet Efficiency 73.5% 73.5% 73.5%
Bedrooms 3 3 3
Max Balcony Size Standard Large Up to 13'0" x 9'10"
Price Range Rs 1.84-2.02 Cr Rs 2.02-2.20 Cr Rs 2.04-2.22 Cr

Need Help Choosing a Configuration?

Our team can guide you through the differences between the three layouts and help you select the one that best fits your family's needs.

Get Expert Guidance